欢迎进入广州首盾科技股份有限公司网站
服务热线
15915895560
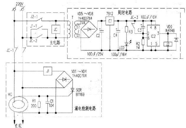
自动重合闸漏电保护开关电路
时间: 2018-11-05 02:13:21 浏览次数:3062
电路有三个特点,一是有别于一般的一次眺闸开关,它在眺闸后经过一段时间可以 自动重合闸 试送电,可避免因偶然漏电跳闸让人疲于奔命,甚至摸黑操作而发生事故:二是使用接触
      电路有三个特点,一是有别于一般的一次眺闸开关,它在眺闸后经过一段时间可以自动重合闸试送电,可避免因偶然漏电跳闸让人疲于奔命,甚至摸黑操作而发生事故:二是使用接触器的常闭触点供电,正常时接触器为释放状态,所以平时不耗电;三是电子电路平时也是断电状态,既消除了静态消耗,又不会因长期通电而易受雷电等非常态电源的影响。
自动重合闸漏电保护开关电路
     电路主要由主控制电、漏电检测电路,以及延时电路等几部分组成。其工作原理如下: 
 
      正常状况下,交流接触器JC的常闭触点JC-1闭合供电,常开触点JC-2断开.漏电检测电路的继电器Jl的常开触点JH也断开,所以JC线圈及后面的延时电路都不通电。 

 
      当负载端漏电时.互感器HG中有感应电流(压),可控硅SCR导通,Jl得电,JH吸合,JC得电.JC-I断开负载供电.JC-2闭合自保,漏电检测电路失电,儿又复释放。与此同时,延时动作电路通电。市电由变压器T降压、VD5~VD8整流、C2滤波、IC1稳压,得到12V直流电源。一开始,时基电路IC2(2)、(6)脚因C3两端电压不能突变而星高电平,(3)脚为低电平,继电器J2为释放状态。
 
      C3通过电阻R2充电一段时间后.IC2(2)、(6)脚电位下降到2/3电源电压,(3)脚输出高电平.J2得电,其常闭触点J2-1断开.JC失电释放.JC-2断开,其后的延时电路亦回到断电状态。
 
      JC-I闭合试送电。如果负载端是偶然漏电,则此时恢复正常供电;如果漏电点仍存在,则再次跳闸,等待检查。
 
      其中.R2、C3为抗干扰所设,以免杂波使电路误动作。JC-3可在JC试送电的瞬间将电容C3上的电荷放掉,保证电路能够迅速恢复到初始延时状态。发光二极管LED点亮时,指示电路正处于延时合闸状态。
 
      元件选用:漏电检测电路可用现成的漏电保护开关的检测部分改制,只要将原吸铁线圈代之以一只小型220V继电器便可。J2用小型12V直流继电器。Jc可根据负载大小选用220V交流接触器。IC2用NE555等时基电路。
 
      组装完成后,根据需要调整电阻Rl的阻值,使延时时间为一分钟到数分钟之间便可。
 
      本电路是单向应用.由电路原理不难发现,只要稍加变动便可将其用于三相交流保护电路。
自动重合闸用电保护器开关厂家-广州首盾电子科技有限公司

Copyright © 2019-2022 广州首盾科技股份有限公司 版权所有
全国服务电话:15915895560   传真:020-82689656
公司地址:广州市黄埔区荔联街工业园路8号   粤ICP备17004867号
办公地址:广州市天河区黄埔大道309号羊城晚报创意园3-18栋4楼